1

杭州亚运村展示中心

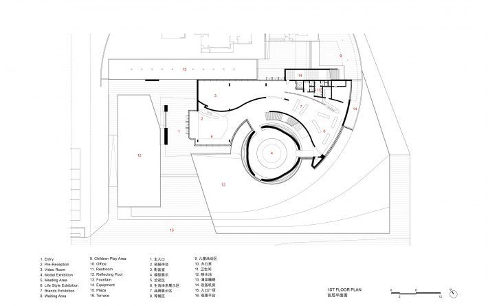
项目位于杭州亚运村南端中心商务区,在亚运会期间有着重要的展示作用。鉴于亚运会体育场馆作为建筑史中重要的一部分,其对跨度、场馆空间、标志性的追求,涉及到建筑形式、建筑结构和建筑建构体系的变革。建筑师从中获取灵感,希望使用者与城市居民能在这个示范区中发现充满时代气息的亚运元素。

原本项目主立面朝北,南侧有一片绿地景观、水道和树阵,随着场地的更换,入口道路换至南侧,主立面也改为朝南,自然的树阵被遮挡住了。于是在建筑形式上,采用了一个水平向舒展开的屋面,屋面下的建筑主体部分是一个圆锥形的城市展厅空间,采用双曲拋物面的薄壳结构形式。建筑外表皮采用2mm厚的不锈钢曲面板,光线变化之间阴影投射在起伏的立面上,更加突显出建筑的体量和形体感,加强了南侧的入场感受性。结合广场上的水景倒影,一定程度上也弥补了原本平缓单调的景观面。

建筑内部空间我们也采用了很多与圆弧形母题相契合的室内设计元素。值得一提的是城市展厅的内部空间用温暖的木色包裹,空间的结构次序犹如一把逐渐打开的扇子,每根“扇骨”都是笔直的,但以一种微妙的方式打开,形成完美的弧面。这个扇形正与杭州亚运会的扇形Logo不谋而合,形成一种呼应关系。城市模型展台和上方的环型灯具通过精心的设计来控制其比例与空间关系的一体性。在此,建筑外部象征未来感的不锈钢面材与内部象征人性关怀的木色微孔板形成了强烈的反差。顶部的自然光从天窗倾洒进来,整个空间形成一座精神殿堂。

对我们来说作为杭州亚运会示范区的建筑设计是形式、结构、空间一体化思维的升华。在建筑周边的环境并不是最佳,景观面有限且场地较为平缓的现实情况下,我们没有强求与周边环境融合,而是更多考虑如何通过建筑设计和独特的语汇来提升场地气质与感受。最终建筑整体的韵律感和力量感也完美阐释了业主对于杭州的城市精神和2023年亚运会的体育精神。

项目信息

项目地点:中国杭州
项目规模:1367 m2
业主:华润置地有限公司
建筑设计主创: 陆轶辰
项目负责人:Kenneth Namkung
项目建筑师:梅富鹏、方春骐
项目团队:Hyungsun Choi, 郭奕爽,闵嘉剑,钟臻炜

执行建筑师: 浙江东南建筑设计有限公司
室内设计:李玮珉建筑师事务所
景观设计:柏景设计
标识设计:702 匠天
幕墙顾问及施工图设计:中南幕墙科技股份有限公司
总承包商:华润建筑有限公司
摄影:吴清山